No. 1899, Xupanlu, Jiading District, Shanghai, China +86-18916801867 [email protected]
Recently, we received an urgent request from a valued customer: the vehicle entry width of their existing inventory gantry machine was insufficient, which seriously affected the normal operation of their warehouse and logistics handling. With a customer service philosophy, our team responded quickly, provided a professional customized solution, and successfully solved the problem, winning high recognition from the customer.
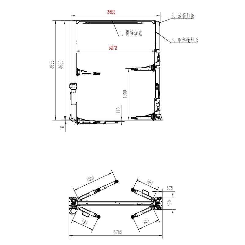
The customer reported that the original vehicle entry width of the gantry machine in their inventory was 2922mm. With the adjustment of their business scale and the change of handling vehicle models, the existing width could not meet the entry needs of large-sized vehicles, resulting in low handling efficiency and even potential safety hazards in the operation process. Faced with the customer’s urgent demand, our technical team immediately launched a comprehensive communication and on-site investigation to fully grasp the equipment parameters, on-site operation environment and core needs of the customer.


After in-depth analysis and repeated demonstration, our technical team determined a targeted customized modification plan: expand the vehicle entry width of the gantry machine from 2922mm to 3272mm, which can fully suit the customer’s request and ensure the smooth progress of logistics operations. To achieve this modification goal, three key components need to be replaced: the crossbeam, steel wire rope and oil pipe.
The crossbeam is the core load-bearing component of the gantry machine, and its length and structural strength directly determine the vehicle entry width and operation safety. Our team customized a new crossbeam according to the modified width requirements, selecting high-strength materials that meet industrial standards to ensure that the crossbeam has sufficient load-bearing capacity and stability after installation, which can adapt to long-term high-frequency operation needs. At the same time, since the expansion of the vehicle entry width will change the force angle and length of the steel wire rope, we matched the steel wire rope of the corresponding specification, strictly following the replacement standard to ensure that the steel wire rope has excellent wear resistance and tensile strength, and eliminates potential safety hazards caused by force mismatch. In addition, the oil pipe, as an important part of the hydraulic system of the gantry machine, needs to be replaced with a longer oil pipe to adapt to the position change of the crossbeam after modification, ensuring the smooth operation of the hydraulic system and avoiding oil leakage and other problems that affect the equipment operation.

In the whole service process, our team adhered to the principle and promoted the modification project efficiently. From the communication of needs and formulation of plans to the customization of components and on-site installation and commissioning, we kept close communication with the customer, timely fed back the progress of the project, and adjusted the details of the plan according to the customer’s on-site actual situation to ensure that the modification work was completed as scheduled and met the customer’s expectations.
After the completion of the modification, the vehicle entry width of the gantry machine reached the expected 3272mm, and the equipment operated stably and smoothly. The customer highly affirmed our rapid response ability, professional technical level and thoughtful customized service, saying that the modification not only solved the urgent problem of insufficient vehicle entry width, but also improved the efficiency of warehouse logistics handling, and laid a solid foundation for the subsequent expansion of business scale.
Focusing on customer needs and creating value for customers has always been our core service concept. This customized modification project fully reflects our professional strength in gantry machine maintenance and customization, as well as our commitment to providing high-quality and efficient solutions for customers. In the future, we will continue to deepen our technical research and service optimization, provide more personalized and professional customized services for customers in different industries, help customers solve various equipment operation problems, and achieve win-win development together with customers.
In addition, we are honored to announce our participation in the 139th Canton Fair. We look forward to showcasing our comprehensive range of automotive maintenance equipment to global buyers and industry partners, and exploring new opportunities for in-depth collaboration.

Key Exhibition Info:
Hot News2026-05-09
2026-05-08
2026-05-06
2026-04-13
2026-04-09
2026-04-08